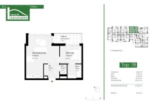
2-Zimmer-Wohnung mit Balkon in der Engerthstraße
Diese rund 41,82 m² große Wohnung befindet sich im 2. Obergeschoss eines 2018 errichteten Wohngebäudes in der Engerthstraße 102 und überzeugt durch ihre durchdachte Raumaufteilung, hochwertige Ausstattung und die Nähe zur Neuen Donau sowie zur Millennium City.
Die Wohnung gliedert sich in einen einladenden Vorraum (ca. 4,60 m²), ein Badezimmer mit Badewanne, Handwaschbecken und Waschmaschinenanschluss (ca. 4,18 m²), eine großzügige Wohnküche mit integrierter Einbauküche samt Geräten (ca. 23,41 m²), ein Schlafzimmer (ca. 8,18 m²) sowie eine separate Toilette (ca. 1,45 m²). Der ca. 5,64 m² große Balkon bietet zusätzlichen Freiraum und lädt zum Entspannen im Freien ein.
Das Gebäude überzeugt durch moderne Architektur, große Fensterflächen und Balkone mit Glasgeländern. Eine effiziente Fußbodenheizung mittels Fernwärme sorgt für angenehmes Wohnklima, Kellerabteile stehen ebenfalls zur Verfügung.
Die Lage spricht für sich: In nur etwa 5 Gehminuten erreichen Sie die U6- und S-Bahn-Station Handelskai sowie das Einkaufs- und Entertainmentzentrum Millennium City. Der Donau-Treppelweg liegt nur rund 200 Meter entfernt und bietet perfekte Möglichkeiten für Freizeit und Erholung direkt am Wasser.
Ein ideales Zuhause für Singles oder Paare, die modernes, urbanes Wohnen mit hoher Lebensqualität schätzen.
Schnell sein und gleich eine schriftliche Anfrage über das Kontaktformular (!!) beim Inserat senden:

Alle Bilder © Christoph Kolar, Quelle & Anzeige: Wohnnet